ELH-93
Vapaa-ajan talot
												
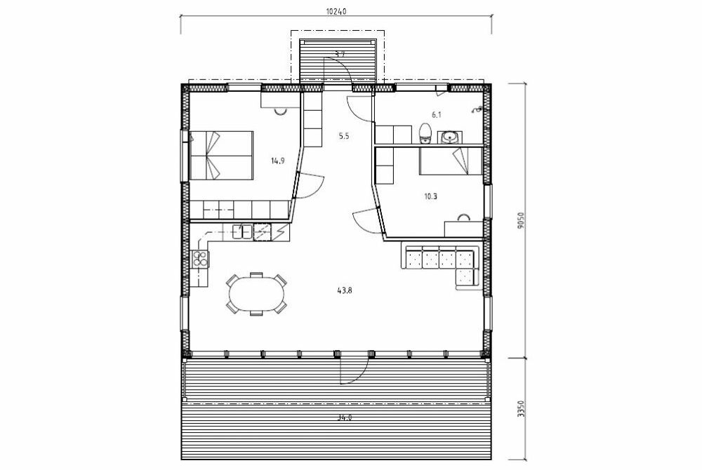
										Alakerta									
								
									
											
			93 m²
					
									
												
										Terassit / parvekkeet									
								
									
											
			38 m²
					
									
												
										Kokonaisala									
								
									
											
			131 m²
					
									Kuvia klikkaamalla näet ne suurempana. Täältä löydät esitteemme.
Kiinnostaako tämä malli?
Olisiko tämä malli lähellä sitä oikeaa? Tehdäänkö tähän toivomasi muutokset? Ota yhteyttä Eurohongan asiantuntijoihin ja kerro lisää. Unelmiesi hirsitalo odottaa sinua.
Kun vakioratkaisu ei riitä...
Vai onko tässä mallissa joku yksityiskohta jonka haluaisit osaksi omaa hankettasi? Tai yhdistää tästä jotain johonkin toiseen malliin? Kerro toiveesi niin räätälöidään malli sellaiseksi kuin tarve on.
 
				 
							
														
							
													 
							
														
							
													










